3.2 Spalting for spaltelinje i stålbehandle en rekke metallmaterialer, slik som aluminium, rustfritt stål, kaldvalset stål, varmvalset stål, silisiumstål og PPGI, gjennom prosesser som avvikling, slitsing og omspoling. De er i stand til å produsere smale strimler som oppfyller kundenes spesifikasjoner. Etter hvert som markedets etterspørsel etter spolemaskiner for stålspoler øker, fortsetter kundeproduksjonsskalaen å utvide seg, og en rekke prosjekter dukker opp, og ulike typer spolelinjer for stålspoler har blitt introdusert for å møte kundenes behov. Denne artikkelen vil gi en detaljert introduksjon til sløyfelinjer for stålspiraler, i håp om å gi en dypere forståelse av skjæremaskiner for stålspiral.
A stålspiral spaltelinjeer et automatisert spolebehandlingsutstyr designet for å vikle av og kutte brede strimler i ønskede bredder eller lengder med høy hastighet og presisjon. Moderne spolelinjer i stål integrerer vanligvis avvikling, spalting, tilbakespoling, automatisk verktøybytte og mate- og stablingssystemer for å optimere høypresisjon og effektive produksjonsprosesser. Ved å bruke en strengt konstruert sirkulær stålspiral-skjæremaskin, er stålspiral-spaltelinjer mye brukt i metallbearbeidingsindustrien og er populære for deres pålitelighet og effektivitet.
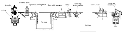
●Hovedkomponenter i stålspiralskivemaskin
Sløyfelinjer for stålspole inkluderer vanligvis tre hovedspiralhåndteringssystemer:
Avviklingssystem: Laster og retter ut brede spoler for å forbedre overflatekvaliteten.
Klippesystem: Kutter den brede spolen i smale strimler med ønsket bredde ved hjelp av et skjæreverktøy.
Tilbakespolesystem: Spoler de kuttede strimlene tilbake og samler dem i et stableverktøy.
Denne strukturen gjør det mulig for stålsløyfemaskiner å raskt produsere store mengder produkter uten behov for sekundære operasjoner eller annet etterbehandlingsutstyr.
![]() |
![]() |

Kveiling → Avvikling → Føring → Klem og grov utjevning → Kutting → Skrapoppsamling → Svingbro → Webkorreksjon og mating → Splitting → Skrapkveiling → Svingbro → Spenningsstasjon → Tilbakespoling → Lossing
3.1 Avvikling for spaltelinje i stål
Under avviklingsprosessen til enspolemaskin i stål, blir råmaterialet matet inn i avviklingssystemet via en spolelaster eller en automatisert robotmater. Dette systemet bruker vanligvis en ensidig, utvidet dordesign og er egnet for håndtering av lett til tung belastning. Avviklingssystemet sørger for en jevn, overflatefri spole når den vikles av.
Decoilerens design gjør at den kan håndtere metallspoler med bredder fra 40 til 60 cm. For materialer med større indre diameter kan fyllplater forbedre effektiviteten. Fyllringer er mye brukt til å håndtere spoler med større indre diametre.
3.2 Spalting for spaltelinje i stål
Under slisseprosessen blir metallspolen lastet inn i skjæreområdet og kuttet av to parallelle dor og omhyggelig maskinerte roterende kuttere. Skjærenøyaktigheten til en stålspiralskivemaskin påvirker kvaliteten på sluttproduktet direkte, så valget av kuttere og innstillingen av skjæreparametere er avgjørende.
Like viktig under skjæreprosessen er kantklipping og avfallshåndtering. Moderne spolelinjer i stål er ofte utstyrt med gummistrippingsringer og en avfallsspole for effektivt å håndtere avfall under produksjon. Avfallssnellen samler opp avfallet under spenning, noe som sikrer effektiv drift.
3.3 Tilbakespoling for spolemaskin i stål
I noen spolelinjer i stålspoler brukes et omviklingssystem for å håndtere spoler som krever bøyning eller deformasjon for å lage tilpassede profiler. Tilbakespolingssystemet gjør det mulig å bunte spoler i lengde på spolen, noe som sikrer kvaliteten og stabiliteten til det ferdige produktet.
3.2 Spalting for spaltelinje i stålTil det tunge spolemateriale kan KINGREAL STEEL SLITTER levere vognen til spoleladningen, som kan flyttes vandret og lodret for at lette at sætte stålspolerne ind i uncoileren.
Stålspole-skjæremaskin i bilproduksjon: Brukes i produksjon av kroppskonstruksjonsdeler og tilbehør.
Stålspiral-spaltelinje i byggebransjen: Gir metallmaterialer for dør- og vindusrammer, konstruksjonsstøtter og andre applikasjoner.
Sløyfelinje i stålspole ved produksjon av elektriske apparater: Brukes i produksjon av apparathus og interne komponenter.
Skjæremaskin i stålspiral i husholdningsapparater: Gir metalldeler og strukturelle støtter for husholdningsapparater.
Med den økende markedsetterspørselen etter sløyfelinjer for stålspiraler, har det dukket opp forskjellige nye typer sløyfemaskiner for stålspole for å møte produksjonsbehovene til forskjellige kunder.
![]() |
![]() |